Centre national d’incendie et de secours

  • Type : Bâtiments
  • Etat d’avancement : Finalisé
  • Autorité compétente : Administration des bâtiments publics
  • Date de mise en service : 2020
  • Commune(s) : Luxembourg

Présentation

La construction d’un nouveau bâtiment pour les besoins des services de secours, dénommé « Centre national d’incendie et de secours » ou « CNIS » dans le quartier du Ban de Gasperich sur le futur Boulevard Kockelscheuer, à proximité du carrefour Gluck s’inscrit dans la volonté du Gouvernement de regrouper en un lieu unique et sous un même toit les services d’intervention et de secours.

Le CNIS regroupera sur un site unique la caserne des pompiers professionnels de la Ville de Luxembourg (actuellement située route d’Arlon), la Direction de l’Administration des services de secours (actuellement située rue Christophe Plantin) avec le Central des secours d’urgence (CSU-112) actuellement située rue Robert Stümper), l’École nationale de la protection civile (actuellement située à Schimpach), ainsi que l’École nationale des services d’incendie et de sauvetage (actuellement située à Niederfeulen).

De plus le projet constitue un élément central de la réforme des services de secours mise en œuvre par le projet de loi portant organisation de la sécurité civile et création d’un Corps grand-ducal d’incendie et de secours (CGDIS), Le CNIS abritera la future direction de l’établissement public, l’Institut national de formation des secours, ainsi que le centre d’incendie et de secours territorialement compétent notamment pour la Ville de Luxembourg. Il est prévu que le Centre d’incendie et de secours Luxembourg, de catégorie IVbis, assure simultanément au moins deux départs en intervention pour une mission de lutte contre l’incendie ou de sauvetage, au moins quatre départs en intervention pour une mission de secours d’urgence aux personnes et deux autres départs en intervention.

Le CNIS symbolisera aussi bien le regroupement sous le même toit des sapeurs-pompiers et de la Protection civile que la volonté de l’État et des communes de gérer à l’avenir ensemble les services de secours. Plus pragmatique, le CNIS hébergera la Direction du nouvel établissement public, dont la proximité avec les sapeurs-pompiers professionnels permettra la réalisation de synergies importantes, comme par exemple au niveau du fonctionnement du nouveau central des secours d’urgence, de la mise en place d’une chaîne de commandement unifiée, et dans le domaine de la planification et de la prévention. Finalement, l’Institut national de formation formera à l’avenir l’ensemble du personnel intervenant des services de secours du Grand-Duché, qu’il soit professionnel ou volontaire.

Ainsi, le nouveau Centre national d’incendie et de secours sera le véritable « état-major » du futur CGDIS.

Concept urbanistique et paysager

Le nouveau Centre national d’incendie et de secours sera implanté au 3, boulevard Kockelscheuer à Luxembourg-Gasperich, sur un terrain de 5,2 ha appartenant à la Ville de Luxembourg.

Le projet se divise en deux zones :

  • La zone I regroupera la caserne des sapeurs-pompiers professionnels et volontaires, l’actuelle Administration des services de secours, le nouveau CSU-112 ainsi que l’Institut national de formation des secours. La Ville de Luxembourg sera le maître d’ouvrage de cette partie et préfinancera les travaux. L’État remboursera sa partie du financement suivant les modalités retenues dans la convention du 3 septembre 2015.
  • La zone II comportera le plateau technique avec les installations techniques nécessaires à l’entraînement et à la formation pratique des pompiers professionnels et volontaires. Les coûts de construction pour la zone II sont pris intégralement en charge par l’Etat qui en est le maître d’ouvrage.

La construction d’un service de secours et incendie d’une telle envergure représente, outre les exigences fonctionnelles, techniques et économiques également un défi important en ce qui concerne la conception architecturale.

Par son implantation sur un terrain en pente, le Centre national d’incendie et de secours (CNIS) deviendra un symbole visible au loin. En vue de correspondre aux ambitions urbanistiques, mais également afin d’assurer un cadre architectural approprié pour les nombreuses interdépendances fonctionnelles, l’utilisation synergétique des espaces, l’organisation stricte et claire ainsi que la flexibilité du bâtiment, le CNIS est planifié comme bâtiment rectangulaire de forme allongée qui s’étend le long de la nouvelle voie de desserte du Boulevard Kockelscheuer.

Uniquement la centrale de commandement des secours d’urgence en tant que composante essentielle du centre ainsi que la tour de tuyaux dépassent la construction continue à trois niveaux.

Une cour d’entrée orientée côté boulevard regroupe de part et d’autre les seuls accès publics au centre. Les espaces d’accueil sont vitrés et s’ouvrent aux visiteurs. La cour intérieure fait déjà partie de la zone de sécurité et est sécurisée par une clôture avec des portillons d’accès.

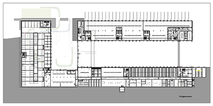
La pente naturelle de la topographie permet d’aménager les garages d’une façon simple et claire sur deux niveaux.

D’une part au rez-de-chaussée du côté du boulevard est situé le hall principal des véhicules d’intervention du 1er et 2e rang. L’accès au garages est assuré par une cour de liaison à l’arrière de laquelle se trouvent des garages supplémentaires pour d’autres véhicules et remorques.

D’autre part au niveau supérieur se trouvent principalement les garages de l’institut de formation initiale et continue et des pompiers-sapeurs volontaires ainsi que les ateliers des pompiers professionnels. Ils sont situés directement face au terrain des installations d’entraînement. Cette zone est desservie par un deuxième d’accès latéral par la rue Mozart. Il est destiné avant tout aux véhicules retournant d’une intervention ainsi qu’aux différents types de livraisons.

Concept architectural

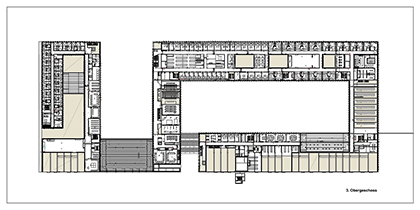
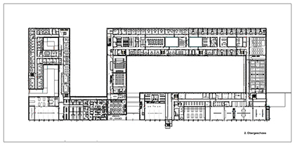
Le bâtiment principal en zone 1 est subdivisé en 3 zones.

A l’est de la cour d’entrée, aux 2e et 3e étages se trouve l’institut de formation initiale et continue des services de secours (INFSS) avec ses salles d’entraînement, ses dortoirs et vestiaires. En- dessous de ces locaux, aux rez-de-chaussée et le 1er étage, est installé un parking pour les besoins du CNIS.

A l’ouest, la cour dessert la caserne de sapeurs-pompiers professionnels, les locaux des pompiers volontiers, le centre d’assistance ainsi que l’administration des services d’urgence.

A la jonction entre les parties est respectivement ouest de la cour d’entrée se trouvent des surfaces de synergie étant utilisées en commun par l’institut de formation initiale et continue, les sapeurs-pompiers ainsi que les administrations, à savoir la cantine avec restaurant ainsi que les grandes salles de réunions respectivement salles de cours.

Horizontalement le bâtiment est divisé en deux parties. Le rez-de-chaussée respectivement le 1er étage sont majoritairement réservés aux garages, la plupart d’entre eux à double hauteur. Au 2e et 3e étages se trouvent tous les bureaux, les espaces de travail et les salles de séjour. Le 4e étage est réservé à la centrale nationale des secours d’urgence ainsi qu’aux salles de l'équipe chargée de coordonner les interventions en cas de crise.

Cette subdivision fonctionnelle se traduit également dans la conception de la façade.

Venant de la cour d’entrée, les administrations des pompiers et des services de secours ainsi que la centrale nationale des secours d’urgence sont accessibles séparément par le hall d’entrée principal à plusieurs niveaux. Au rez-de-chaussée, les visiteurs du bâtiment passent un premier contrôle de personnes. De là ils accèdent par l’escalier principal aux différents étages. A chaque étage sont aménagés des zones d’attente faisant fonction de 2e contrôle avant de pouvoir accéder aux différents départements. Au 4e étage, l’accès de la cage d’escalier vers la centrale des secours d’urgence est sécurisé par des sas supplémentaires.

Il est prévu d’organiser dans les salles de formation et les auditoriums aux 2e respectivement 3e étage des manifestations publiques comme des conférences de presse ou des séances d’informations par exemple. Ces locaux sont directement accessibles à partir de l’escalier de manière à ce que les visiteurs peuvent y accéder sans entrer dans les zones sécurisées des administrations.

Les sapeurs-pompiers volontaires recevront également un accès séparé qui se trouve au niveau supérieur dans la zone sécurisée du terrain. Ils sont groupés dans le bâtiment en tant qu'unité fonctionnelle autonome sans liaison interne avec les locaux des sapeurs-pompiers professionnels.

L’accès aux autres zones du bâtiment est garanti par des larges couloirs. Ils profitent en permanence de la lumière naturelle grâce à des patios intérieurs. Les étages sont liés verticalement à intervalles réguliers par des cages d’escalier internes. En plus, il est prévu d’installer des monte-charges dans les ateliers pour la livraison de marchandises.

La zone 2 du nouveau Centre national d’incendie et de secours se situera à l’arrière du bâtiment central et comprendra le plateau technique pour la formation de base et la formation continue des pompiers volontaires et professionnels.

Alors que le complexe de la zone 1 constitue le point de repère architectural du projet, les matériaux sélectionnés pour les façades de la zone 2, notamment du grand hall, sont choisies de manière à rester plus discrets.

En raison de la haute sollicitation prévisible des façades pendant les exercices celles-ci doivent être de nature robuste et à faible entretien. A cette fin le béton armé, qui remplit ces exigences et contraste la façade marquante de l’immeuble principale, a été choisi comme matériau pour la totalité de cette façade. Les immeubles chauffés sont pourvus d’une façade sandwich en béton armé avec isolation centrale tandis que les immeubles non chauffés sont conçus en une construction monocouche de béton armé.

L’élément central de cette zone est constitué par le hall d’entraînement qui reproduit un échantillon d’immeubles représentatifs pour l’architecture qu’on retrouve au Grand-Duché, permettant la simulation réaliste de nombreux scénarios d’accidents ou d’incendies :

  • un immeuble à deux étages incluant des entrepôts ;

  • un immeuble d’habitation avec des surfaces commerciales au rez-de-chaussée ;

  • un immeuble d’habitation à 5 étages avec toiture plate permettant des exercices de sauvetage en hauteur ;

  • un immeuble d’habitation ancien avec caves ;

  • une reconstitution d’un système de canalisation.

À l’extrémité Nord du hall d’entraînement se trouvent les vestiaires, les bureaux pour les instructeurs, l’entrepôt pour le matériel d’instruction ainsi qu’un parcours pour l’entraînement avec les appareils respiratoires isolants.

Les surfaces découvertes adjacentes au hall d’entraînement permettent des exercices en plein air, incluant la simulation d’accidents impliquant des substances dangereuses.

Une maison à feu de type (R-1 R+2) constitue un autre élément essentiel dans la formation des pompiers volontaires et professionnels. Cette maison pas comme les autres, présente un environnement « fumée froide » ou « fumée chaude ». Son sous-sol et ses deux étages permettent aux stagiaires de s’engager sur des interventions aussi différentes que des feux de cave, feux d’appartement avec des sauvetages en hauteur à réaliser. Ce bâtiment permet de s’exercer sur des feux réels en garantissant les règles de sécurité adaptées à la formation.

Au milieu de la zone d’entraînement se trouve un bâtiment logistique à double utilisation. Au rez-de-chaussée se trouvent 4 espaces de stockage ainsi qu’un local technique comprenant, en plus des installations techniques du bâtiment même, le module de commande de la maison d'exercice-feu.

Au 1er étage se trouve le « Dirty Classroom » accessible par un escalier extérieur. Il s’agit d’une simple salle de classe où les participants d’un exercice peuvent discuter avant, durant ou après les entraînements, parfois même complètement en tenue d'intervention.

Les autres bâtiments ne constituent pas de constructions traditionnelles. Il s’agit plutôt de coulisses, les exigences architecturales et constructives perdant d’importance en faveur de la fonctionnalité. On y compte notamment :

Un caisson d’entraînement au bois permet un entraînement adéquat pour détecter les signes d’un embrasement généralisé (flash-over) où il est possible d'observer la progression réelle de l'incendie depuis la mise à feu jusqu'au dégagement de fumées et de s'entraîner à pratiquer les comportements adéquats et les différentes méthodes d'extinction du feu.

Un silo d’entraînement permet la simulation de sauvetages de personnes ensevelies.

Un autre bâtiment est dédié aux interventions techniques, permettant la simulation d’accidents de travail, l’écroulement d’immeubles ou encore le découpage de différents matériaux, tels que bois et métaux.

L’assistance technique

L’exercice de l’assistance technique se déroule centralement sous une toiture à l’abri des intempéries laquelle assure également une partie du soutien de la pente. Les exercices visent essentiellement à simuler divers types d’accidents dans les domaines de la construction et de la métallurgie.

L’installation de réservoirs pour entraînement

L’installation de réservoirs se constitue d’une construction en forme de bac et d’une surface imperméable à l’eau.

L’étang d’entraînement

Pour la pratique des opérations dans le milieu aquatique, l’étang d’entraînement permet l’exercice de mise en place de barrages anti-pollution, de la manipulation conforme d’écumeurs de pétrole et de bateaux pneumatiques, ainsi que de l’usage professionnel de sacs de sable en cas d’inondation ou de la récupération de véhicules immergés.

Par ailleurs l’étang fait également partie intégrante du concept de la rétention des eaux de surface du site.

Finalement, la zone II abrite un bâtiment incluant un tunnel routier et ferroviaire permettant des exercices dans un milieu confiné.

Une portion de voies ferrées avec quai ainsi qu’un plan incliné complètent le plateau technique.

Concept technique

Compte tenu de tous les aspects économiques et environnementaux les besoins en énergie non renouvelable doit être réduite pour atteindre une efficacité énergétique maximale.

Dans le bâtiment principal la séparation entre les halles pour véhicules avec les entrepôts aux étages inférieures faiblement chauffées (12°) et les zones de séjour normalement chauffées (20°) permet un concept d’isolation simple et ininterrompu. Entre les zones de 12° et 20° à l’intérieur du bâtiment un isolement évite des pertes énergétiques.

Les valeurs d'isolation des façades diffèrent selon le chauffage, l’orientation et la fonction des locaux concernés.

Les composants des pièces faiblement ou non chauffées se conforment à un coefficient de transmission thermique maximale de 0,50 W/m2*K.

Les surfaces vitrées sur les façades des bureaux et salles de séjour sont réduites et pourvus de verre de protection solaire de qualité supérieure (triple vitrage isolant) afin de minimiser le risque de surchauffe pendant l’été. Par ailleurs il est veillé à garantir un éclairage naturel adapté des postes de travail. A part la ventilation mécanique les locaux peuvent également être aérées au besoin de manière naturelle grâce à des ouvrants en façade. L’ouverture des fenêtres est limitée à une fonction pivotante, étant donné qu’un basculement entraînerait une perte d’énergie suite à une ouverture inaperçue.

Toutes les salles de séjour et les bureaux sont équipés une protection solaire externe. En général les volets battants en aluminium sont montés devant les fenêtres des étages supérieurs en tant qu’éléments d’ombrage. Les vantaux ne sont pas complètement fermés, mais semi-transparent grâce à une perforation adaptée. La perforation des éléments est optimisée quant à l’apport d’énergie et l’utilisation de la lumière. Les bureaux derrière les façades entièrement vitrées (désinfection, bureaux de chef magasinier, salles de séjour face aux cour intérieures et outres) sont pourvus d’une protection solaire en lamelles horizontales perforées. Les volets battants sont motorisés.

Quant à l’ombrage optimal de l’immeuble un programme de réglage subordonné de la protection solaire est indispensable. Au niveau de la commande de la protection solaire la réduction de l’apport énergétique à l’intérieur du bâtiment constitue le critère primordial. Afin d’éviter une surchauffe de l’immeuble en été l’entière protection solaire est fermée pendant les heures matinales à partir d’une intensité de rayonnement de 150W/m2. Au long de toute la journée les collaborateurs ont la possibilité d’ouvrir ou de fermer la protection solaire selon leurs besoins. Une deuxième fermeture générale a lieu à midi. Dans la soirée, après le coucher du soleil, la protection solaire est ouverte sur la totalité de l’immeuble pour prévenir un trop fort refroidissement pendant la nuit. En hiver par contre la prémisse est le gain maximal de rayonnement solaire.

La protection anti-éblouissement et anti-réflexion est considérée de façon indépendante des éléments de protection solaire extérieurs et le cas échéant assurée par des installations comme par exemple des stores intérieurs à commande manuelle.

Les portes des garages, magasins et ateliers y empêchent le montage d’une protection solaire interne ou externe. Des dispositions constructives particulières garantissent cependant un bon climat dans les halls. Des verres solaires de très haute qualité combinés à une sérigraphie partielle permettent une réduction de l’apport en énergie. Par ailleurs le vitrage au-dessus des portes sur le côté sud est équipé de lamelles de guidage du flux de lumière, installées entre les vitres isolantes. Ces mesures combinées diminuent l’apport d’énergie dans les halls de manière substantielle. Les portes battantes dans le hall des pompiers sis Boulevard Kockelscheuer et les lucarnes dans les ateliers supportent la ventilation transversale et le refroidissement des garages.

Pour le respect de ces exigences la plupart des locaux de séjour et des zones de travail ne sont pas seulement dotés d’une ventilation et aération mécanique, mais comprennent de même une activation thermique des composants des plafonds en béton respectivement des plafonds froids.

Du fait de leur utilisation particulière les bâtiments d’entraînement sont à considérer comme bâtiments de coulisse, conçus exclusivement pour des buts d’exercice et non pour le séjour prolongé de personnes. Par conséquent ils sont ne sont pas chauffées et ne comprennent pas d’isolation thermique.

La partie nord du grand hall d’entraînement ainsi que le bâtiment logistique constituent une exception par rapport à ce principe vu qu’ils comprennent des zones prévues pour des séjours prolongés (p.ex. les locaux de formation ou de séjour, les installations sanitaires etc.). Pour ces bâtiments les qualités de l’enveloppe bâtie sont choisies en fonction du respect des exigences énergétiques légales. Ici les façades sont réalisés en éléments sandwich en béton armé avec une épaisseur de 20 cm pour la coque intérieure, une épaisseur de 10 cm pour l’isolation centrale et une épaisseur de 8 cm pour la coque extérieure. En-dessous de la dalle du hall une isolation est prévue pour minimiser la perte de chaleur par rapport au sol et afin de garantir une température de base adaptée et réglée au moyen d’un plancher chauffant industriel. De manière générale la sélection des composants utilisés repose sur des critères de durabilité et de l’utilisation des immeubles respectivement de leurs « énergies grises ».

Fiche technique

Maîtrise d'oeuvre

  • Architectes (zone1)
    • Boege Lindner architekten, Hamburg (D)
    • Architecture et Environnement, Luxembourg
  • Architecte (zone 2) : KPlan, Siegen (D)
  • Ingénieur en génie civil (zone 1) : Schroeder en associés, Luxembourg
  • Ingénieur en génie civil (zone 2) :  KPlan, Siegen (D) avec Schroeder en associés, Luxembourg
  • Ingénieur en génie électrique (zone 1) : Jean Schmit Engineering, Luxembourg
  • Ingénieur en génie électrique (zone 2) : KPlan, Siegen (D) avec Interplan Ingenieure, Trier (D)
  • Ingénieur en génie thermique (zone 1) : Jean Schmit Engineering, Luxembourg
  • Ingénieur en génie thermique (zone 2) : KPlan, Siegen (D) avec Interplan Ingenieure, Trier (D)
  • Ingénieur en génie sanitaire (zone 1) : Jean Schmit Engineering, Luxembourg
  • Ingénieur en génie sanitaire (zone 2) : KPlan, Siegen (D) avec Interplan Ingenieure, Trier (D)
  • Paysagiste :  /
  • Bureau de contrôle technique (zones 1 et 2): Socotec, Livange
  • Organisme agréé (zones 1 et 2): Socotec, Livange
  • Coordinateur sécurité santé (zones 1 et 2) : Simon & Christiansen, Luxembourg
  • Coordinateur-pilote (zones 1 et 2) : Paul Wurth/ Geprolux, Luxembourg

Chiffres clés du projet

  • Surface brute (zone 1): 39'700 m2
  • Surface brute (zone 2) : 7'100 m2
  • Volume brut (zone 1) : 179'300 m3
  • Volume brut (zone 2) : 49'500 m3
  • Budget du projet (zone 1): EUR 121'665'987,62 TTC (ind. constr. 738,97 / 1er octobre 2013)
  • Budget du projet (zone 2) : EUR 19'460'203,10 TTC (ind. constr. 738,97 / 1er octobre 2013)

Timing

  • Vote de la loi par la Chambre des Députés: 18 décembre 2015
  • Début du chantier (zone 1): mars 2016
  • Début du chantier (zone 2) : septembre 2017
  • Durée des travaux (zone 1) : 45 mois
  • Durée des travaux (zone 2): 22 mois

 

Galerie photos

Plan

Photo galerie 2019

Photo galerie 2018

Dernière mise à jour