Lycée technique Michel Lucius, nouvelle construction terrain bloc 2000

  • Type : Bâtiments
  • Etat d’avancement : Finalisé
  • Autorité compétente : Administration des bâtiments publics
  • Date de mise en service : 15 septembre 2014
  • Commune(s) : Luxembourg

Présentation

Le projet de construction remplace l’aile sud du Lycée technique Michel Lucius. En effet, l’ancienne aile 2000 fut démolie en 2009 et depuis le site offre une partie de terrain libéré de toute construction, cadré sur 3 côtés par un chemin carrossable, une allée d’arbres à haute tige et par le bâtiment administratif (bloc 1000) existant.

Une étude de faisabilité a abouti à une proposition laquelle prévoit le rattachement de la nouvelle aile à construire au bâtiment administratif existant (bloc 1000). Ainsi la nouvelle aile est accolée directement au bâtiment administratif côté sud et le recouvre sur l’entièreté de sa surface de toiture. Cet aménagement permet de concevoir une structure scolaire commune pour les deux immeubles lesquelles ne forment désormais plus qu’un ensemble de bâtisses. De ce fait le programme de construction peut être aménagé de façon fonctionnelle tout en respectant une architecture ludique. La conception garantit en plus une intervention technique dans le bâtiment administratif existant pour le rendre conforme à un confort d’utilisation contemporain.

Concept urbanistique et paysager

Le lycée technique Michel Lucius fait partie du Campus Limpertsberg qui est de type « ensemble bâti dans un parc ». Il est composé de différents volumes reliés entre eux par des passerelles. Cette composition manque d’efficience point de vue utilisation foncière, performance énergétique, organisation interne et rapport volume construit / surface utilisable.

Dans l’esprit d’un développement durable la nouvelle annexe a été conçue en un volume compact.

Le raccordement de la nouvelle aile au bâtiment existant, tant en façade qu’en toiture, procure un gain de deux faces extérieures et est de ce fait une solution énergétiquement très favorable. De même l’intervention sur la façade et la toiture du bloc 1000 permet d’assainir en parallèle les faces concernées. En effet, le bâtiment administratif, construit fin des années ’70, n’est plus conforme aux normes et législations actuellement en vigueur pour ce qui est de la performance énergétique des immeubles et notamment des prescriptions en la matière de la sécurité dans la Fonction Publique.

L’implantation de la nouvelle aile d’immeuble au raccord du bloc administratif existant aboutit à un plan masse dense où les fonctions sont concentrées en un seul et unique bâtiment. L’aménagement des constructions en bloc compact laisse libre une large partie du terrain côté sud laquelle peut être utilisée comme espace vert. Ainsi la disposition des bâtiments, peu consommatrice des fonds, permet d’offrir aux élèves une surface arborée avec cheminement, le tout longé par une allée d’arbres existants à haute tige.

La taille de la nouvelle construction requiert la réalisation d’un bassin de rétention d’eau de pluie qui est intégré dans le projet. Ainsi la nouvelle aile s’ouvre par une terrasse/préau couvert sur l’espace vert et le bassin de rétention d’eau aménagé en forme d’étang. La cantine qui donne sur la terrasse, est de ce fait en relation directe avec l’extérieur.

L’entrée au bloc 1000 n'est actuellement pas articulée. Afin de la mettre en évidence, un avant-toit expressif en proportion avec le nouveau volume marquera l’entrée au lycée réaménagé.

Concept architectural

Conception de la nouvelle aile

Le nouveau projet se développe le long de la voie de l’avenue Pasteur. L’entrée actuelle d’accès au bâtiment administratif sera conservée comme accès principal au lycée.

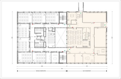
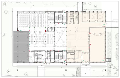
Le hall d’entrée est sensiblement agrandi par la suppression de l’escalier et la cafétéria existants. Le vide central, couvert d’une verrière, amène de la lumière naturelle, dans le rez-de-chaussée lui-même libéré de toute construction hors des piliers porteurs.

Le hall d’entrée devient ainsi le noyau central de l’école à partir duquel se fait la distribution dans les différentes ailes de salles de classe du lycée mais aussi vers les salles communes regroupées autour de ce dernier. La nouvelle cafétéria est agencée directement au hall d’entrée par le biais de la zone d’accueil. Ces deux espaces et la nouvelle salle polyvalente peuvent former, le cas échéant, un seul et unique volume se prêtant à de multiples usages. Le lycée dispose ainsi d’une surface d’environ 1000 m2 (salle polyvalente, cafétéria, zone d’accueil et hall d’entrée) accessible de plein pied.

Une terrasse couverte donne de son côté vers un étang servant également de bassin de rétention d’eau.

Deux cages d’escalier en béton relient les étages. Les portes d’accès donnent sur le couloir de distribution circulaire longeant le vide central. L’usager est en conséquence accueilli par la lumière naturelle de l’éclairage zénithal. Les 21 salles de classe sont aménagées autour des façades extérieures.

Un niveau technique est aménagé en toiture afin de libérer un maximum de surface au sol du rez-de-chaussée au service des besoins des élèves du lycée.

Rénovation du bâtiment administratif existant

Actuellement le bloc 1000 héberge l’entrée du lycée ainsi que l’administration au premier étage. Cet agencement n’est pas modifié par le nouveau projet.

Le fait d’accoler la nouvelle aile au bloc 1000 existant et de surhausser ce dernier d’un étage, intègre le volume existant entièrement dans le nouveau projet. Cette conception a des répercussions tant sur la nouvelle construction que sur celle existante :

  • les hauteurs des étages du bâtiment existant sont déterminantes pour l’aménagement de l’extension.
  • le raccordement de la nouvelle aile à la façade existante implique un réaménagement à l’intérieur du bloc compact que forment maintenant les deux bâtiments. En effet, les locaux du bloc 1000 situés jadis en façade sud deviennent des pièces intérieures. L’aménagement du vide central, éclairé par la verrière zénithale, au cœur du bloc garantit l’éclairage par lumière naturelle des pièces intérieures.
  • la suppression de l’escalier existant, non conforme aux normes de sécurité en vigueur, libère de l’espace précieux pour les besoins du lycée. Les nouveaux escaliers sont aménagés au milieu du nouveau bloc, en périphérie immédiate de l’espace accueil (vide central), pour assurer un accès facile de par le centre du bâtiment. Un ascenseur vient compléter la circulation verticale.

Les façades

Les façades de la nouvelle construction sont recouvertes d’un bardage horizontal de bois et celles du bâtiment existant par des plaques de fibre ciment, ceci afin de rendre l’historique du bâtiment lisible de l’extérieur. L’isolation, type cellulose insufflée dans la construction, ensemble avec l’emploi de plaques en fibrociment à masse élevée garantit un confort maximal aux usagers.

Conception stabilité

La nouvelle construction sera réalisée en structure de bois. Le bois, un matériau écologique, présente l’avantage d’une réalisation rapide par la mise en œuvre d’éléments préfabriqués. L’utilisation du bois va de pair avec une réduction du bruit et de la poussière pendant la phase chantier.

La construction en bois pose toutefois des exigences élevées aux critères de résistance au feu. Les deux cages d’escalier et la gaine d’ascenseur sont réalisées en béton afin de rigidifier et de stabiliser la construction en bois, ont également un impact positif sur le concept de protection contre le feu en offrant des chemins de fuite sécurisés. Des contreventements aux extrémités de la nouvelle construction complètent le volet de la stabilité.

Le bâtiment administratif existant dispose d’une structure mixte de béton armé et d’ossature métallique. Le surhaussement de ce volume d’un étage supplémentaire à trame différente de l’existant en dessous, présente un défi spécial à l’ingénieur de génie civil.

Concept technique

Le concept énergétique, résultat d’une étude approfondie, a servi de base pour définir les objectifs d’un point de vue énergétique.

Le concept se base sur les quatre axes suivants:

  • enveloppe extérieure performante basée sur une structure en bois,
  • l’utilisation de l’inertie thermique de la structure,
  • un concept de sécurité approfondie lié à la structure du bâtiment,
  • des installations techniques simples performantes et adaptées au besoin du bâtiment.

Pour atteindre ces objectifs, l’architecture et les caractéristiques physiques du bâtiment ainsi que les installations techniques ont été parfaitement coordonnées et harmonisées.

La température, le degré d’humidité, l’éclairage, l’acoustique, la qualité de l’air en tant que facteurs objectifs, ainsi que l’esthétique et la perception de l’espace en tant que facteurs subjectifs, déterminent le confort aussi bien des élèves, des enseignants que de tout autre utilisateur du bâtiment et ont, en conséquence, été étudiés de façon approfondie pour aboutir à une solution globale optimale et réduite en coût de fonctionnement.

La ventilation naturelle des locaux a été retenue pour des raisons énergétiques, pédagogiques et d’acceptation du concept par les utilisateurs. Celle-ci est réalisée par des ouvrants motorisés sur une partie des fenêtres en façade du bâtiment s’ouvrant sur toute la hauteur. Ce système ayant pour but de minimiser les recours à une ventilation mécanique, forte consommatrice en énergie.

Afin de garantir un éclairage naturel optimal, le projet prévoit la réalisation de grandes surfaces vitrées à hauteurs allant de l’allège jusqu’à la dalle de plafond. La hauteur libre des salles de classe garantira un éclairage naturel maximal et uniforme même jusqu’au fond des salles de classe. Les fenêtres seront réalisées avec un triple vitrage isolant et combiné à un système de gestion automatisé des stores extérieurs évitant les surchauffes des locaux.

L’éclairage artificiel est réalisé afin de garantir un confort visuel sans fatigue pour les occupants.

Un concept de suivi de l’ensemble des consommations énergétiques, que cela soit en termes de chauffage, d’eau, ou d’électricité, est mis en place afin de pouvoir ajuster au mieux les éventuelles dérives de consommation.

Fiche technique

Maîtrise d'oeuvre

  • Architecte : Jean-Marie Wirtz architecte, Luxembourg
  • Ingénieur en génie civil : Daeadlus engineering, Heffingen
  • Ingénieur en génie électrique : BLS Energieplan, Luxembourg
  • Ingénieur en génie thermique : BLS Energieplan, Luxembourg
  • Ingénieur en génie sanitaire : BLS Energieplan, Luxembourg
  • Paysagiste : /
  • Bureau de contrôle technique : AIB-Vinçotte, Luxembourg
  • Organisme agréé : Luxcontrol, Esch/Alzette
  • Coordinateur sécurité santé : Argest, Luxembourg
  • Coordinateur-pilote : /

Chiffres clés du projet

  • Total surface utile : 5 800 m2
  • Total surface brute : 6 650 m2
  • Total volume brut : 29 800 m3
  • Budget du projet : EUR 16.3 mio TTC

Timing

  • Vote de la loi par la Chambre des Députés : /
  • Début du chantier : : Avril 2013
  • Mise en service : 15.09.2014

Galerie photos

Plan

Photos

  1. ©Levygraphie s.à r.l.

  2. ©Levygraphie s.à r.l.

  3. ©Levygraphie s.à r.l.

  4. ©Levygraphie s.à r.l.

  5. ©Levygraphie s.à r.l.

  6. ©Levygraphie s.à r.l.

  7. ©Levygraphie s.à r.l.

  8. ©Levygraphie s.à r.l.

  9. ©Levygraphie s.à r.l.

  10. ©Levygraphie s.à r.l.

  11. ©Levygraphie s.à r.l.

  12. ©Levygraphie s.à r.l.

  13. ©Levygraphie s.à r.l.

  14. ©Levygraphie s.à r.l.

  15. ©Levygraphie s.à r.l.

Dernière mise à jour