Hall sportif du Lycée Nic Biever

  • Type : Bâtiments
  • Etat d’avancement : Finalisé
  • Autorité compétente : Administration des bâtiments publics
  • Date de mise en service : Avril 2012
  • Commune(s) : Dudelange

Présentation

Depuis des années, le Lycée Nic Biever utilise le complexe du site ‘Centre sportif René Hartmann’, appartenant à la Ville de Dudelange (VdD), pour ses cours d’éducation physique.

En avril 2009, la VdD envisage la fermeture du centre sportif Hartmann. Il sera démoli pour laisser place à un bâtiment neuf. Ainsi, l’Administration des bâtiments publics est chargée par le biais du Ministère du développement durable et des infrastructures (MDDI) de la construction d’un hall sportif pour pallier au manque de locaux le temps de la nouvelle construction.

Une étude de faisabilité pour un hall sportif sur le site ‘Alliance’ est lancée en collaboration avec les bureaux d’études et les instances concernées.

En avril 2011, le chantier débute en entreprise générale.

Une année plus tard, le 16 avril 2012, le LNB commence les cours dans son nouveau hall sportif. Les entraînements et les matchs des équipes sportives de la VdD s’y tiendront prochainement.

Concept urbanistique et paysager

Le nouveau Hall sportif est situé rue Reiteschkopp à Dudelange à proximité immédiate de l’annexe Alliance du Lycée Nic Biever, et du parc naturel ‘Op der Hardt’.

Le volume habillé de plaques blanches de fibrociment est placé à l’extrême angle nord-est du site.

Objectifs

La réalisation de l’infrastructure sert aux cours d’éducation physique du lycée Nic Biever ainsi qu’à l’entraînement et aux matchs officiels des équipes sportives de la Ville de Dudelange, pendant les démolitions et reconstructions du site ‘Centre sportif René Hartmann’.

Descriptif

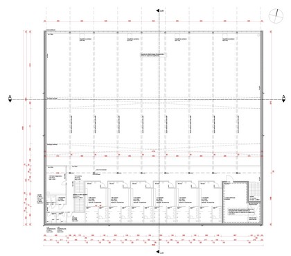
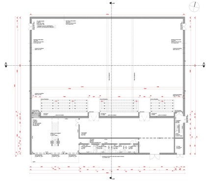
Le bâtiment abrite une salle de sports de 29 mètres par 47 mètres qui peut être divisée par deux rideaux mobiles. L’éclairage naturel diffus de la salle est assuré par deux bandeaux de verrières complétés par une rangée de fenêtres orientées au nord, ce qui réduit considérablement les besoins en éclairage artificiel. Les locaux annexes sont répartis sur deux niveaux adossés à la salle.

Les six vestiaires à l’étage sont accessibles par une zone de circulation ouverte qui crée des liens visuels intéressants avec la salle de sports en contre-bas. Cette zone sert en même temps de tribune supplémentaire et permet d’augmenter la capacité des trois blocs de tribunes télescopiques situés dans la salle. Ces tribunes permettent entre autre d’accueillir un public nombreux lors des matchs disputés par les associations sportives de la Ville de Dudelange.

Au rez-de-chaussée le foyer spacieux est marqué par l’escalier principal en béton apparent libre de tout support intermédiaire.

Concept architectural

Le langage architectural est clair et structuré et la gamme de matériaux très réduite. L’apparente austérité des sols et des murs en béton apparent brut contraste avec la chaleur du bois de sapin de la charpente, des plafonds et des habillages muraux. Les installations techniques apparentes sont parfaitement ordonnées et se démarquent par leur couleur blanche uniforme. Grâce à cette rigueur qui se décline à travers tout le bâtiment, le hall sportif dégage une certaine harmonie et sérénité.

Cette approche sobre et précise provient non seulement d’une volonté architecturale, mais aussi d’un impératif de réalisation rapide. Pour répondre à un planning défini, la phase d’exécution a été précédée d’une phase d’études serrée pendant laquelle l’équipe des architectes et bureaux d’études ont dû développer ensemble le projet d’exécution à partir d’un avant-projet.

Concept technique

Pour des raisons de coûts et d’entretien, les installations techniques du bâtiment sont réduites à un minimum.

La ventilation se fait de façon naturelle lors de l’occupation usuelle de la salle. En cas de grande affluence, en temps de matchs par exemple, un système ponctuel de ventilation mécanique combiné à la sortie des tribunes télescopiques se met en marche.

Un système de refroidissement nocturne naturel combiné à une isolation thermique poussée, garantit aux utilisateurs un climat intérieur agréable en toutes saisons.

Des plafonds et habillages muraux absorbants dans les zones de circulation et la salle de sports permettent d’atteindre le confort acoustique nécessaire au bon déroulement des cours.

Fiche technique

Maîtrise d'oeuvre

  • Architectes : Metaform atelier d’architecture
  • Ingénieur en génie civil : Tecna S.A.
  • Ingénieur en génie électrique : Betic S.A.
  • Ingénieur en génie thermique : Betic S.A.
  • Ingénieur en génie sanitaire : Betic S.A.
  • Paysagiste : /
  • Bureau de contrôle technique : Luxcontrol SA
  • Organisme agréé : Luxcontrol asbl
  • Coordinateur sécurité santé : Ogeba
  • Coordinateur-pilote : /

Chiffres clés du projet

  • Surface nette : 2'405m2
  • Volume bâti : 26'000m3
  • Budget du projet : Eur 6'000'000.-TTC (ind. constr. avril 2012 )

Timing

  • Vote de la loi par la Chambre des Députés : 
  • Début du chantier : 04/2011
  • Durée de chantier prévisionnelle : 04/2012

Galerie photos

Plan

Photos

  1. ©ABP

  2. ©ABP

  3. ©ABP

  4. ©ABP

  5. ©ABP

Dernière mise à jour